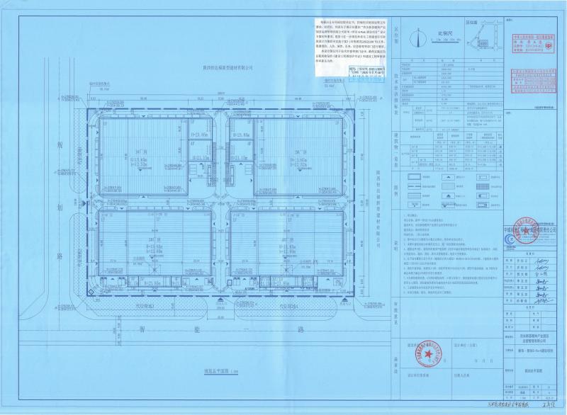
西安新荟瞪羚产业园区运营管理有限公司新华·智谷E-Park建设项目位于周至县尚村镇西部智能装备产业园智能一路1号。项目备案机关:周至县发改委;项目代码:2305-610124-04-01-577191。不动产权证(陕(2023)周至县不动产权第0003483号);用地性质及用途:出让工业用地。
该项目规划总用地面积为28000㎡(42亩),总建筑面积24696㎡(地上建筑面积24325.63㎡,地下建筑面积370.37㎡)。计容面积40159.35㎡(容积率1.43≥1.0),建筑系数63.29%≥40%,绿地率4.4%≤15%;机动车停车位78辆,非机动车停车位126辆。项目规划建设1#厂房、2#厂房、3#厂房、4#厂房,本次报建内容即规划建设内容。
为提高城市规划管理水平,增加规划审批透明度,经我局2025年5月19日局长办公会议研究,初步同意该项目方案,现将西安新荟瞪羚产业园区运营管理有限公司新华·智谷E-Park建设项目总平图向社会进行公示,若相关利害关系人及广大群众对该规划方案有异议或意见,请于公示期内将书面材料送交周至县自然资源和规划局。
公 示 期:2025年5月26日至2025年6月1日
地 址:周至县二曲街办云塔南路1号
电子邮箱:zyxingzhengshenpi@163.com
联系电话:029-87111288
联 系 人:王琼 陶豫
周至县自然资源和规划局
2025年5月26日





陕公网安备 61012402000110号